
| Erbauer | SWS |
| Baujahr | 1904 |
| Alte Nummer |
CFF AB4ü 2701, (29) B4ü 3991, 47 B4ü 2631, 56 A4ü 2631, (60) AB4ü 4121, 62 AB 4121, 68 AB 5085 39-03 180-9, 86 Hemmig, 97 VVT |
| Umgebaut | 1960 |
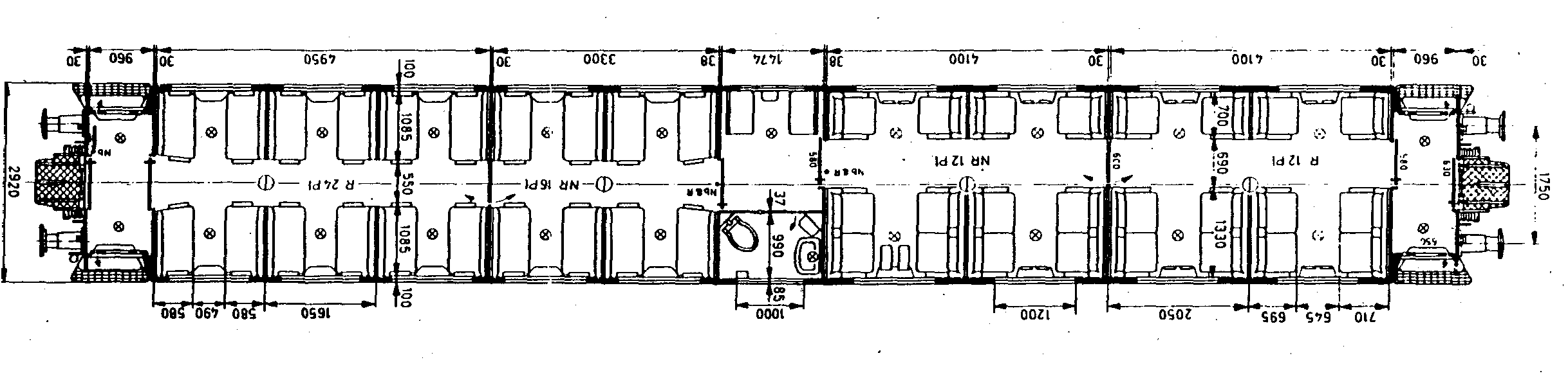
| Anzahl Plätze | 24 / 1 Kl - 40 / 2 Kl |
| Dienstgewicht | 31 / 35 t |
| Bremse | O-P 32 t |
| Länge über Puffer | 21.40 m |
| Höchstgeschwindigkeit | 110 km/h |
![]() |
Diese Wagen wurden zwischen 1904 und 1928 konstruiert und entsprachen damals sehr luxuriösen Wagen mit ausgezeichnetem Laufkomfort. Einen grösseren Umbau erhielten diese Wagen in den Jahren 1958 - 1963. Sie erhielten neue Stahlkasten (ehemals Holzkasten), dies aus Sicherheitsgründen. Dieser Umbau wurde an der ganzen Wagenserie durchgeführt. Die Klassengattungen wurden an verschiedenen Wagen mehrmals geändert.
Dieser Wagen wurde durch Herr Hemmig (Classic-Rail) gerettet. Danach tauchte er diesen Wagen gegen einen De 4/5. Den BLS Triebfahrzeug hatten wir mit vielen Ersathteilen gekauft.
Der Innenraum hat einige Flecken und hat unter die Sonne ein bisschen mehr geleidet, sieht sonst wie im AB4ü 312 aus.
http://www.voisin.ch/vvt/ : 13.07.2006